Tack vare en storstilad donation på svindlande 700 000 kronor från Caroline Wijk lades grundplåten till ett nytt konserthus placerat på Götaplatsen. Arkitekt Nils Einar Eriksson lyckades skapa ”en plats för alla med musiken i centrum”.
Ofta beskrivs Konserthuset som en pärla i funkisstil. Men fasaden fick bli nyklassicistisk för att passa med de övriga husen på Götaplatsen.
”Trots att 30-talet präglades starkt av funktionalismen valde Eriksson att att ge fasaden nyklassicistiska tillägg. Detta för att koppla samman byggnaden med Götaplatsens resterande byggnader och befintliga uttryck. Entréfasadens materialitet domineras av mötet mellan marmor och koppardetaljer och det stora panoramafönstrets möte med den gula tegelfasaden.” (Ur rapport från Chalmers institution för Arkitektur och Samhällsbyggnadsteknik)
Göteborgs stadsarkitekt Björn Siesjö beskriver i tidskriften Arkitektur 2023 hur fasadens kolonner samspråkar med Stadsteatern och Konstmuseet. Han berättar hur tanken var att knyta ihop Götaplatsen även med rummen på insidan. På så sätt har publikens väg genom huset blivit en ”ikonisk vandring”:
”…från entrén, vidare in under Stora salen, till avslutningen i den övre foajéns balkong mot Poseidon”. (Tidningen Arkitektur Nr 6, 2023)
Vem var då Nils Einar Eriksson? Han var född i Stockholm och hade arbetat med den stora svenska ikonen Gunnar Asplund, men startade eget kontor i Göteborg 1932. Framgången med Göteborgs Konserthus ledde till att Eriksson fick rita fler betydande inslag i Göteborgs stadsbild: Folkets Hus vid Järntorget 1949, Park Avenue Hotel 1950 och Guldhedens vattentorn. Intill Folkets Hus tillkom även biografen Draken och dansrestaurang Vågen 1956.

Royal Festival Hall med 2700 sittplatser stod färdig 1951. Salen är hemmaarena för flera orkestrar, bland annat Philharmonia där Santtu-Matias Rouvali är chefdirigent.
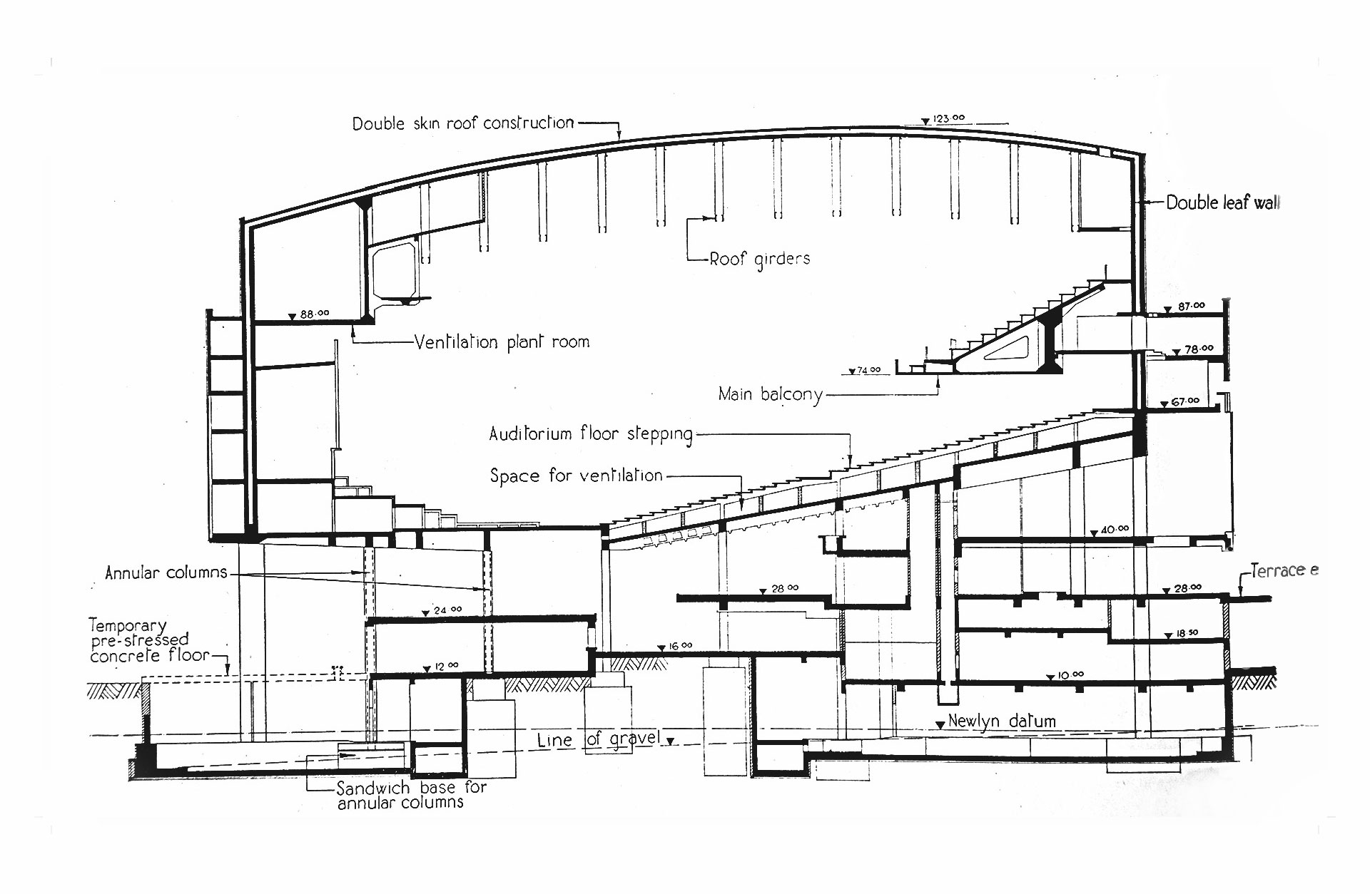
Men vad få känner till är att Göteborgs Konserthus skulle inspirera en av Europas största och modernaste konsertsalar. Efter andra världskrigets slut stod London redo att bygga sin Royal Festival Hall på Southbank. Ansvarig arkitekt Robert Matthew var imponerad av svensk arkitektur och vände blicken mot Göteborg. Här hade Nils Einar Erikssons team utformat en konsertsal helt enligt senaste forskningen kring akustik, vilket blev centralt för byggnadens gestaltning. Matthew besökte Göteborg och visades runt i Konserthuset av Nils Einar Eriksson själv. 1951 invigdes Royal Festival Hall. Den funktionalistiska eran var dock över – byggnaden är brutalt modernistisk. Den fulländade salen rymmer hela 2700 sittplatser, och blev den första brittiska byggnaden från efterkrigstiden att klassas som kulturminne. Det är också en bra historia.
Text: Jenny Svensson
Foto: Arkiv

Göteborgs Konserthus och Royal Festival Hall i London i genomskärning visar likheterna mellan byggnaderna.
